Типовой проект

Rasmus

Общая площадь

116.6м²

Срок строительства

210 дней

Технология

Каркас/Газобетон

Стоимость

от 12 000 000 ₽

Общая
информация

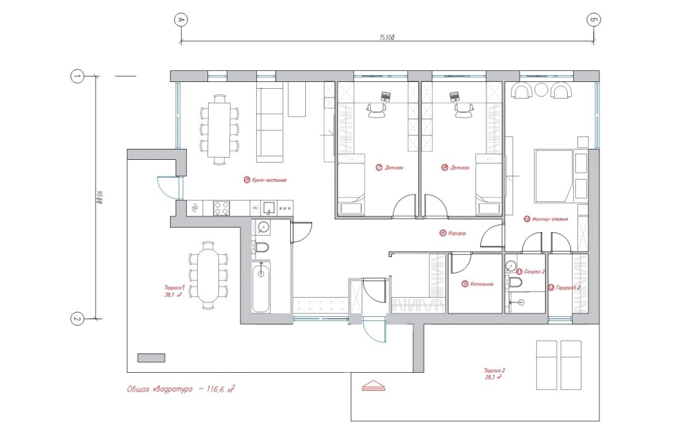
Одноэтажный просторный дом для большой семьи.

Количество комнат: 3 спальни, 2 санузла, 2 гардеробные, 1 кухня-гостиная.

  • Размеры9,0х15,3 метров м
  • Этажность1 этажа
  • Высота от пола до потолка3,5 м
  • Общая площадь116,6 кв.м. м²
  • Тёплая площадь50 м²
  • Площадь открытых террас, крылец, балконовтерраса 38,7+ 28,3 кв.м. м²
  • Количество спален3

Материалы
по проекту

Описание
проекта

Дом Rasmus идеально подойдет для большой семьи. В нём предусмотрены две детские комнаты, большая мастер-спальня для хозяев с отдельным санузлом и гардеробной и просторная кухня-гостиная для совместного приёма пищи и отдыха всей семьёй.


Две большие террасы— одно из главных преимуществ этого дома. Там вы сможете насладиться свежим воздухом и уютной атмосферой наедине с собой или в компании друзей и семьи. Мы уверены, что этот дом покорит вас с первого взгляда своим стильным дизайном и функциональной планировкой. Здесь вы найдете все необходимое для счастливой и комфортной жизни.  

Выберите комплектацию

Холодный контур

Проектировка и постройка холодного каркаса вашего будущего дома

от 1 000 ₽
  • Фундамент

  • Стены

  • Высота этажей

  • Стропильная система

  • Кровля

  • Логистика и работы включены

Теплый контур

Полностью завершенная внешняя отделка дома и его утепление

от 2 000 ₽
  • Все, что входит в пакет
    “Холодный контур”

  • Энергосберегающие окна

White Box

Полностью готовый к ремонту дом, с проведенными в него коммуникациями

от 3 000 ₽
  • Все, что входит в пакет
    “Холодный контур” и Тёплый контур”

  • Инженерные сети

  • Черновая отделка

  • Внешняя чистовая отделка

Под тапочки

Полностью завершенный проект. Мы берем на себя все работы и вы получаете готовый дом

5 000 ₽
  • Все, что входит во все пакеты

  • Внутренняя чистовая отделка

  • Мебель и сантехника

  • Обустройство территории

Как выглядят построенные дома

Фотогалерея

Процесс строительства индивидуального жилого дома из клееного бруса

тест

Процесс строительства

Разработка проекта

Слайд 1

Процесс строительства

Разработка проекта

Слайд 2

Процесс строительства

Планировка участка

Слайд 3

Процесс строительства

Планировка участка

Слайд 4

Процесс строительства

Устройство фундамента

Слайд 5

Процесс строительства

Устройство фундамента

Слайд 6

Процесс строительства

Сборка домокомплекта

Слайд 7

Процесс строительства

Сборка домокомплекта

Слайд 8

Процесс строительства

Устройство стропильной системы

Слайд 9

Процесс строительства

Устройство кровли

Слайд 10

Процесс строительства

Покрытие бруса

Слайд 11

Процесс строительства

Устройство системы отопления (теплый водяной пол)

Слайд 12

Процесс строительства

Теплый водяной пол

Слайд 13

Процесс строительства

Внутренняя отделка жилых помещений

Слайд 14

Процесс строительства

Внутренняя отделка жилых помещений

Слайд 15

Процесс строительства

Внутренняя отделка жилых помещений

Слайд 16

Наши менеджеры готовы помочь

Ответим на любой вопрос

Мы всегда готовы помочь выбрать оптимальное решение под ваш запрос и воплотить его в жизнь

Время осуществить свою мечту

Обретите современный и функциональный дом