Типовой проект

Gyarvi

Общая площадь

100м²

Срок строительства

270 дней

Технология

Каркасная

Стоимость

от 10 000 000 ₽

Общая
информация

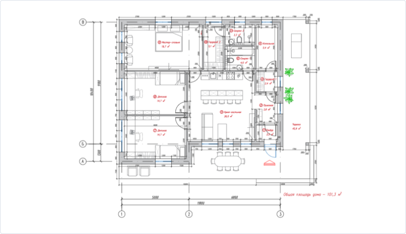
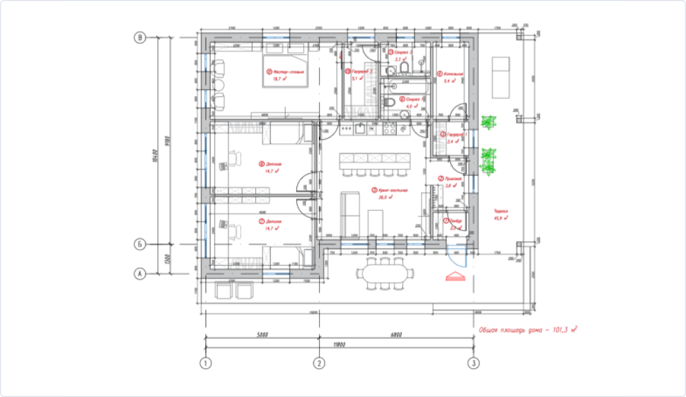
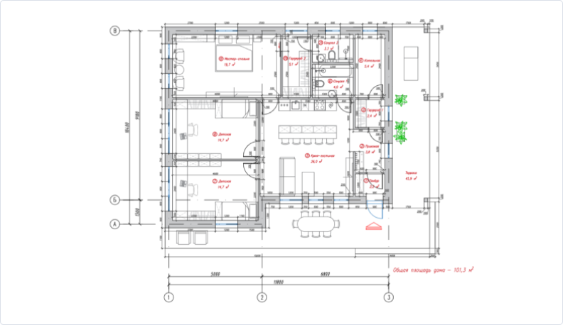
Одноэтажный дом в современном стиле для большой семьи.

Количество комнат: 3 спальни, 2 санузла, 2 гардеробные, 1 кухня-гостиная.

  • Размеры10,4*11,8 м
  • Этажность1 этажа
  • Высота от пола до потолка3,2 м
  • Общая площадь101,3 м²
  • Тёплая площадь80.. м²
  • Площадь открытых террас, крылец, балконов45,9 м²
  • Количество спален3
  • тест1тест2

Материалы
по проекту

Описание
проекта

Дом Gyarvi идеально подходит для комфортной жизни большой семьи.

Наличие двух детских комнат обеспечит каждому ребёнку в семье пространство для игр и учёбы. Большая кухня-гостиная станет прекрасным местом для семейных посиделок и отдыха в кругу близких. Два санузла сделают жизнь более комфортной, особенно утром, когда все спешат на работу и учёбу. А гардеробные позволят компактно и аккуратно разместить все вещи.

Мы убеждены, что вы полюбите этот дом и найдёте в нём идеальное жилище для своей семьи.

Выберите комплектацию

Холодный контур

Проектировка и постройка холодного каркаса вашего будущего дома

от 6 000 000 ₽
  • Фундамент

  • Стены

  • Высота этажей

  • Стропильная система

  • Кровля

  • Логистика и работы включены

Теплый контур

Полностью завершенная внешняя отделка дома и его утепление

от 12 312 ₽
  • Все, что входит в пакет
    “Холодный контур”

  • Энергосберегающие окна

White Box

Полностью готовый к ремонту дом, с проведенными в него коммуникациями

от 10 000 000 ₽
  • Все, что входит в пакет
    “Холодный контур” и Тёплый контур”

  • Инженерные сети

  • Черновая отделка

  • Внешняя чистовая отделка

Под тапочки

Полностью завершенный проект. Мы берем на себя все работы и вы получаете готовый дом

Индивидуально
  • Все, что входит во все пакеты

  • Внутренняя чистовая отделка

  • Мебель и сантехника

  • Обустройство территории

Дополнительные работы

Подготовительные работы

Выполняем расчистку и планировку территории, снос строений, перекладку существующих и прокладку новых сетей инженерно-технического обеспечения, устройство постоянных и временных дорог, устройство инвентарных временных ограждений строительной площадки, размещение мобильных (инвентарных) сооружений для нужд строительства, устройство складских площадок, обеспечение строительной площадки противопожарным водоснабжением и инвентарем, освещением.


Благоустройство территории

Как выглядят построенные дома

Фотогалерея

Процесс строительства индивидуального жилого дома из клееного бруса

тест

Процесс строительства

Разработка проекта

Слайд 1

Процесс строительства

Разработка проекта

Слайд 2

Процесс строительства

Планировка участка

Слайд 3

Процесс строительства

Планировка участка

Слайд 4

Процесс строительства

Устройство фундамента

Слайд 5

Процесс строительства

Устройство фундамента

Слайд 6

Процесс строительства

Сборка домокомплекта

Слайд 7

Процесс строительства

Сборка домокомплекта

Слайд 8

Процесс строительства

Устройство стропильной системы

Слайд 9

Процесс строительства

Устройство кровли

Слайд 10

Процесс строительства

Покрытие бруса

Слайд 11

Процесс строительства

Устройство системы отопления (теплый водяной пол)

Слайд 12

Процесс строительства

Теплый водяной пол

Слайд 13

Процесс строительства

Внутренняя отделка жилых помещений

Слайд 14

Процесс строительства

Внутренняя отделка жилых помещений

Слайд 15

Процесс строительства

Внутренняя отделка жилых помещений

Слайд 16

Наши менеджеры готовы помочь

Ответим на любой вопрос

Мы всегда готовы помочь выбрать оптимальное решение под ваш запрос и воплотить его в жизнь

Время осуществить свою мечту

Обретите современный и функциональный дом