Типовой проект

Hardy

Общая площадь

165м²

Срок строительства

360 дней

Технология

Каркасная/газоблок

Стоимость

от 15 000 000 ₽

Общая
информация

Двухэтажный дом с панорамными окнами для большой семьи.

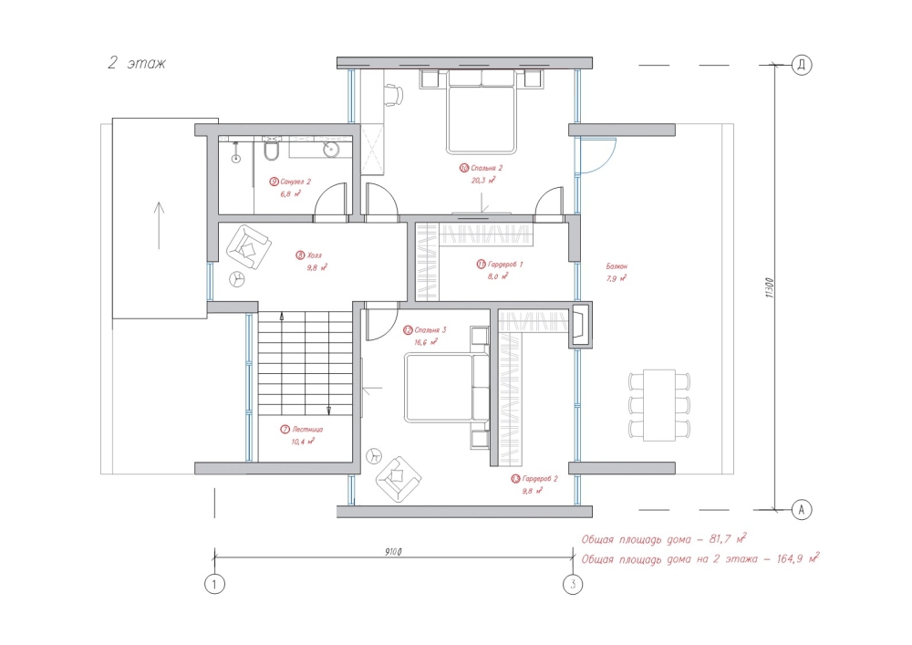
Количество комнат: 3 спальни, 2 санузла, 2 гардеробные, 1 кухня-гостиная.

  • Размеры9,1*11,3 м
  • Этажность2 этажа
  • Высота от пола до потолка3,5 м
  • Общая площадь164,9 м²
  • Тёплая площадь м²
  • Площадь открытых террас, крылец, балконовтерраса 30,2 + балкон 7,9 + крыльцо 24,0 м²
  • Количество спален3

Материалы
по проекту

Описание
проекта

Дом Hardy идеально подойдет большой семье и хозяевам, любящим принимать гостей.


На первом этаже находятся спальня, санузел, просторная кухня-гостиная и большая терраса. Здесь вы сможете провести время в уютной обстановке, наслаждаясь приятной компанией или просто отдыхая после долгого рабочего дня.


На втором этаже расположены еще две спальни, большой санузел и гардеробная.

В этом доме вы найдете много места для хранения вещей и комфортного отдыха.

Выберите комплектацию

Холодный контур

Проектировка и постройка холодного каркаса вашего будущего дома

от 1 000 ₽
  • Фундамент

  • Стены

  • Высота этажей

  • Стропильная система

  • Кровля

  • Логистика и работы включены

Теплый контур

Полностью завершенная внешняя отделка дома и его утепление

от 2 000 ₽
  • Все, что входит в пакет
    “Холодный контур”

  • Энергосберегающие окна

White Box

Полностью готовый к ремонту дом, с проведенными в него коммуникациями

от 3 000 ₽
  • Все, что входит в пакет
    “Холодный контур” и Тёплый контур”

  • Инженерные сети

  • Черновая отделка

  • Внешняя чистовая отделка

Под тапочки

Полностью завершенный проект. Мы берем на себя все работы и вы получаете готовый дом

5 000 ₽
  • Все, что входит во все пакеты

  • Внутренняя чистовая отделка

  • Мебель и сантехника

  • Обустройство территории

Как выглядят построенные дома

Фотогалерея

Процесс строительства индивидуального жилого дома из клееного бруса

тест

Процесс строительства

Разработка проекта

Слайд 1

Процесс строительства

Разработка проекта

Слайд 2

Процесс строительства

Планировка участка

Слайд 3

Процесс строительства

Планировка участка

Слайд 4

Процесс строительства

Устройство фундамента

Слайд 5

Процесс строительства

Устройство фундамента

Слайд 6

Процесс строительства

Сборка домокомплекта

Слайд 7

Процесс строительства

Сборка домокомплекта

Слайд 8

Процесс строительства

Устройство стропильной системы

Слайд 9

Процесс строительства

Устройство кровли

Слайд 10

Процесс строительства

Покрытие бруса

Слайд 11

Процесс строительства

Устройство системы отопления (теплый водяной пол)

Слайд 12

Процесс строительства

Теплый водяной пол

Слайд 13

Процесс строительства

Внутренняя отделка жилых помещений

Слайд 14

Процесс строительства

Внутренняя отделка жилых помещений

Слайд 15

Процесс строительства

Внутренняя отделка жилых помещений

Слайд 16

Наши менеджеры готовы помочь

Ответим на любой вопрос

Мы всегда готовы помочь выбрать оптимальное решение под ваш запрос и воплотить его в жизнь

Время осуществить свою мечту

Обретите современный и функциональный дом