Индивидуальный проект

Улица Ржевского

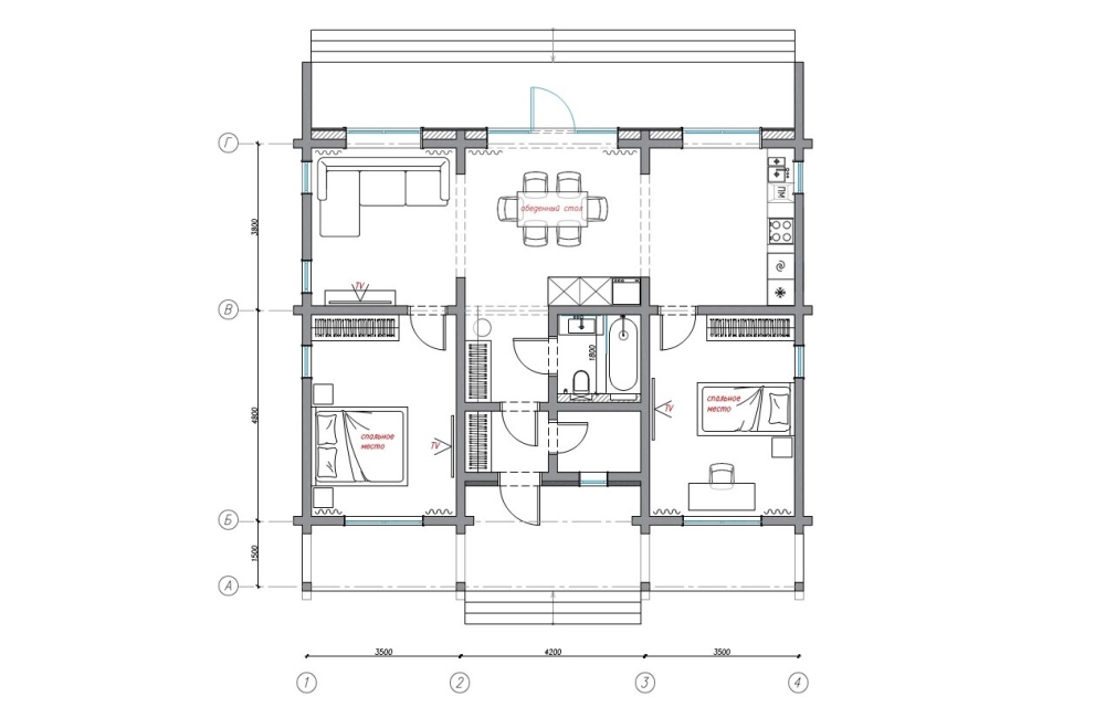
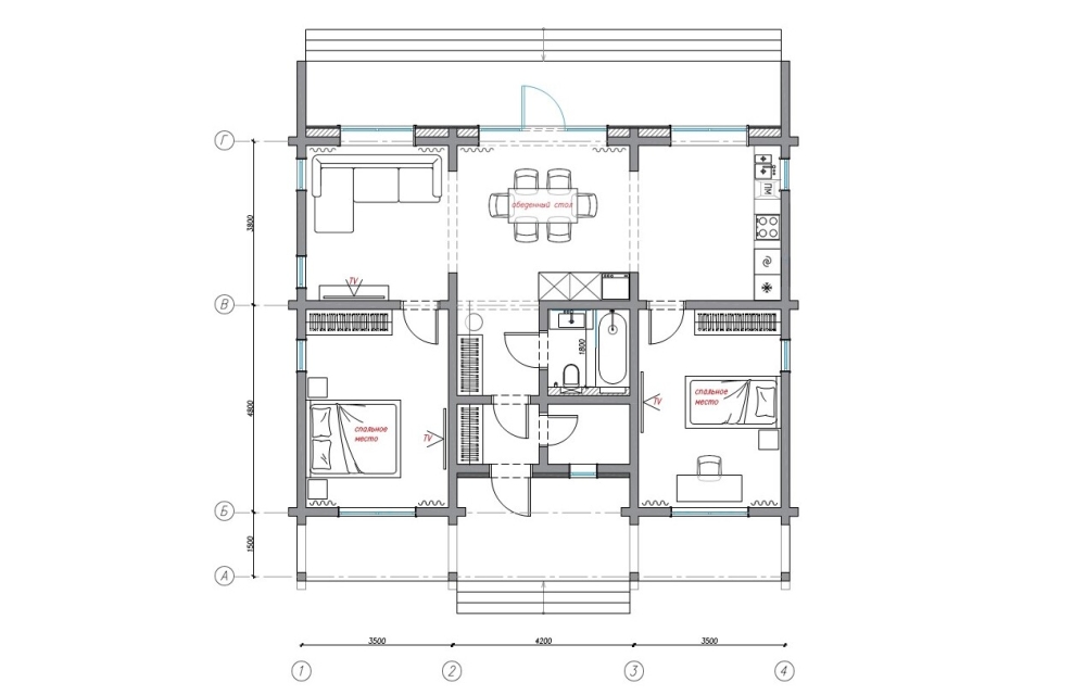
Общая площадь

84.6м²

Срок строительства

210 дней

Технология

Брус

Стоимость

19 900 000 ₽

Информация
о проекте

Пожелание заказчика: строгий фасад, функциональное использование небольшого пространства, терраса и газон.

Наши решения: дом построен в деловом стиле со строгими линиями и сдержанной палитрой цветов, материал строительства — долговечный и прочный клееный брус, который поддерживает геометрию здания.  Грамотная планировка позволила разместить на небольшом пространстве несколько спален и общую зону. Мы также предусмотрели 20-метровую террасу, где заказчик сделал зону для отдыха на свежем воздухе.

Построим дом
для каждого

Предоставляем индивидуальную разработку проекта дома под любые нужды и под любой запрос клиента, а также предложим лучшие решения для вашего бюджет

Планировки

Наши менеджеры готовы помочь

Ответим на любой вопрос

Мы всегда готовы помочь выбрать оптимальное решение под ваш запрос и воплотить его в жизнь

Время осуществить свою мечту

Обретите современный и функциональный дом